We've detected that your browser is not JavaScript enabled which may diminish your user experience.

See Also:
- Auctions
- Previous
- Search
- For Sale

Haute Kitchens Display Show Room

This is a past auction. Click here for current auctions
Thursday 9th November 2023 at 10:30 AM
Location: Unit 1/634 South Road, GLANDORE SA 5037  View Map
Under Instructions: From the director who is relocating due to the north south corridor redevelopment.
Fees: A Buyers Premium of 16.50% Will Apply, Sale is GST Inclusive
Enquiries: Matt Fuss 0433 544 662 mattf@mgs.net.au
Live Auction Webcast: https://www.interbid.com.au/mgs
Summary
Catalogue
Print Catalogue
 

Auction Catalogue

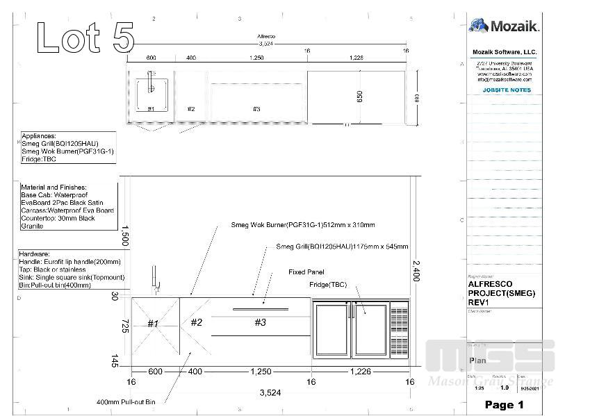
Lot 5

CAESAR STONE OUTDOOR KITCHEN SET

CAESAR STONE COUNTER TOPS, COLOUR: PALM SHADE, APPROVED OUTDOOR MATERIAL'

SMEG 5 BURNER STAINLESS STEEL HOODED BBQ, LPG

BAUMATIC WINE CHILLER, GLASS DOOR, APPROX 145L, 240v

CEFITO SINK WITH MIXER TAP
SLIDE OUT WASTE BIN STORAGE
2 x DOOR, 2 x DRAWER UNDER BENCH STORAGE